- 35510 Butzbach
- Kaufpreis359.000,00 €
- Provision3% des Kaufpreises (zzgl. 19% MwSt.) zzgl. MwSt.
- Wohnfläche105,5 m²
- Grundstück 654,0 m²
- Anzahl Zimmer 4,0
- Objektnummer 1046
Familienfreundliches Einfamilienhaus in ruhiger Lage von Butzbach-Griedel – größtenteils saniert, mit Garten und Garage
Objektbeschreibung
Objekttitel
Familienfreundliches Einfamilienhaus in ruhiger Lage von Butzbach-Griedel – größtenteils saniert, mit Garten und Garage
Lage
Umgebung: überwiegend ruhiges Wohngebiet mit Ein- und Zweifamilienhäusern;
umliegend Felder, Grünflächen und kurze Wege ins Zentrum. Je nach Ausrichtung teils
weite Aussicht.
Anbindung: schnelle Erreichbarkeit der Autobahnen A5 (Frankfurt–Kassel) und A45
(Dortmund–Gießen); nächstgelegene Bahnhöfe in Butzbach und Gießen;
Busverbindungen innerhalb von Griedel/Butzbach; Einkaufsmöglichkeiten,
Schule/Kindergarten sowie Apotheke in der Nähe oder im Zentrum.
Infrastruktur & Lebensqualität: gute Infrastruktur, Priorität auf Familienfreundlichkeit
durch vorhandene Schulen, Ärzte und Freizeitangebote in der Umgebung.
Naherholungsgebiete und Grünflächen in fußläufiger oder kurzer Fahrdistanz.
Ausstatt_beschr
Im Erdgeschoss finden Sie eine helle Küche mit Zugang zum Wohn- und Esszimmer, wo ein Kaminofen für behagliche Wärme und stimmungsvolle Stunden sorgt. Vom Flur gelangen Sie zu einem Tageslichtbad mit Wanne, das praktische Komfortzonen bietet.
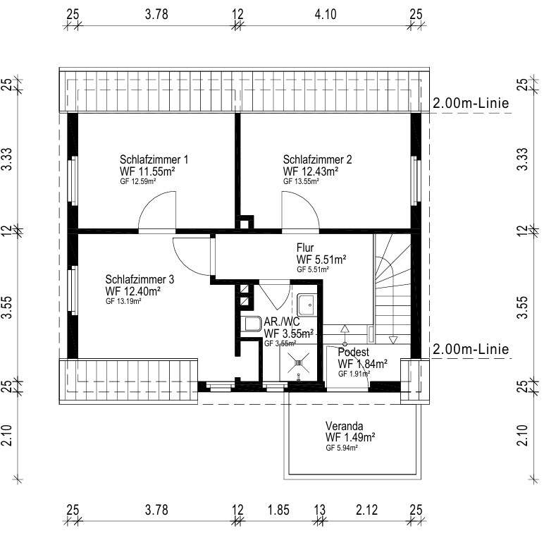
Im Obergeschoss erwarten Sie ein großzügiges Schlafzimmer, zwei Kinderzimmer sowie ein WC und ein Balkon, der zum Sonne tanken einlädt.
Der Dachboden bietet vielseitige Stauraum oder die Möglichkeit eines zukünftigen Ausbaus.
Im Keller stehen drei Kellerräume als praktische Abstellflächen bereit, ergänzt durch eine Waschküche mit direktem Zugang zum Garten zum Trocknen der Wäsche.
Der Außenbereich überzeugt durch einen großen Garten mit direktem Anschluss an einen kleinen Bach –, der Ruhe und Freiheit schenkt und enormes Potenzial für individuelle Gestaltung bietet – von Funktionsbereichen wie Spiel- oder Nutzgärten bis hin zu Rückzugszonen, Terrassen oder einem kleinen Gartenteich. Die Garage, zwei davorliegende KFZ-Stellplätze, eine Werkstatt, ein Geräteraum und ein Holzlager ergänzen den Garten und schaffen ideale Voraussetzungen für Hobbyprojekte, Entspannung und Familienaktivitäten. Insgesamt sorgt die ruhige Lage und die großzügige Gartennutzung für ein besonders wohnliches Lebensgefühl.
Objektbeschreibung
In einer ausgesprochen familienfreundlichen und ruhigen Gegend von Griedel erwartet Sie dieses Einfamilienhaus mit rund 105,5 qm Wohnfläche auf einem großzügigen Grundstück von ca. 654 qm. Der Charme des Hauses aus dem Baujahr 1955 verbindet zeitlose Gemütlichkeit mit Potenzial zur persönlichen Modernisierung, damit Sie hier Ihre ganz individuellen Wohnträume verwirklichen können. Der Garten lädt zum Entspannen ein. Zur Immobilie gehören eine Garage und zwei Außenstellplätze, eine Werkstatt, ein Geräteraum und ein Holzlager. Die Lage verbindet ruhiges Wohnen mit guter Erreichbarkeit von Einkaufsmöglichkeiten, Schulen und Freizeitangeboten – perfekte Voraussetzungen für Familienalltag und Erholung gleichermaßen.
Sonstige_angaben
Folgende Sanierungsmaßnahmen sind bereits durchgeführt:
• Elektrik und Verteilungskasten erneuert (1988)
• Kunststofffenster erneuert (1995)
• Badezimmer inklusive Rohre erneuert (1995)
• Heizkörper und Heizungsrohre erneuert (1995)
• Eingangstür erneuert (2013)
• Heizung (Gasbrennwert) erneuert (2020)
Die Immobilie benötigt eine Modernisierung bzw. Auffrischung, befindet sich jedoch in gepflegtem Zustand und erfordert keine umfassende Sanierung.
Neugierig geworden? Das können wir verstehen! Ihr potenzielles neues Zuhause wartet darauf, von Ihnen entdeckt zu werden. Kontaktieren Sie uns noch heute für einen Besichtigungstermin – denn dieses Haus ist vielleicht schon bald Ihres!
Hinweis zur Courtage und Identifikation:
Bei Kaufobjekten ist die im Exposé ausgewiesene Courtage nach Abschluss des Kaufvertrages vom Käufer zu zahlen. Der Makler hat einen provisionspflichtigen Maklervertrag mit dem Verkäufer in gleicher Höhe geschlossen.
Gemäß § 2 Absatz 1 Nr. 10 Geldwäschegesetz sind wir seit 2014 verpflichtet, unsere Vertragspartner (einschließlich Interessenten im Erstkontakt) zu identifizieren. Bitte senden Sie uns daher vorab eine Kopie Ihres Personalausweises per Email zu oder bringen Sie diese zum Besichtigungstermin mit.
Danke für Ihr Verständnis.
Ausstattung
- Rampe
- Hebebühne
- Kran
- Bad
- Wanne, Fenster
- Küche
- Einbauküche
- Heizungsart
- Zentral
- Befeuerung
- Gas
- Stellplatzart
- Außenstellplatz
- Wasch / Trockenraum
- Unterkellert
- Keller
- Abstellraum
- Gäste-WC
Energiepass
- Energieausweistyp
- Bedarfsausweis
- Gültig bis
- 23.03.2036
- Mit Warmwasser
- false
- Energiebedarf
- 319.9
- Energieträger
- Gas
- Energieeffizienzklasse
- H
- Baujahr
- 1995
- Ausstelldatum
- 24.03.2026
- Geltende EnEV
- 2014
- Gebäudeart
- Wohngebäude
Kontaktperson
- Firma
- m&k immobilien
- Vorname
- Ina
- Name
- Nau
- Strasse
- Kurstraße 23
- PLZ
- 61231
- Ort
- Bad Nauheim
- Email Direkt
- anfrage@mukimmobilien.com
- Telefon Durchwahl
- +49 6032 7848719
- Fax
- +49 6032 7848591
Immobiliendetails
- Objektnummer
- 1046
- Vermarktung
- Kaufen
- Objektart
- Haus
Kosten
- Kaufpreis
- 359.000,00 €
- Provision
- 3% des Kaufpreises (zzgl. 19% MwSt.) zzgl. MwSt.
Flächen
- Wohnfläche
- 105,5 m²
- Nutzfläche
- 75,1 m²
- Grundstücksfläche
- 654,0 m²
- Anzahl Zimmer
- 4,0
- Anzahl Schlafzimmer
- 3,0
- Anzahl Badezimmer
- 1,0
- Anzahl Stellplätze
- 2,0
- Anzahl Balkone
- 1,0
Zustand
- Baujahr
- 1955
- Zustand
- Gepflegt
- Letzte Modernisierung
- 2020
- Frei ab
- 2026-10-01


















