Historisches Jagdhaus von 1745 in Friedberg Ossenheim. Ein Gastgewerbe mit Charme und Potenzial!
Objektbeschreibung
Objekttitel
Historisches Jagdhaus von 1745 in Friedberg Ossenheim. Ein Gastgewerbe mit Charme und Potenzial!
Lage
Die Lage an einer Landstraße bietet eine hervorragende Sichtbarkeit und Erreichbarkeit für Passanten und Autofahrer, was ideal für Ihr Gastgewerbe ist. Gleichzeitig genießen Sie die Vorteile der ländlichen Umgebung in Friedberg-Ossenheim, die Ruhe und Natur vereint. Diese Kombination aus guter Anbindung und idyllischer Lage macht das Objekt besonders attraktiv für Gäste und Besucher.
Ausstatt_beschr
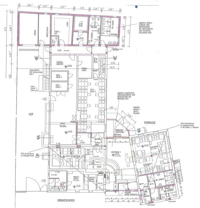
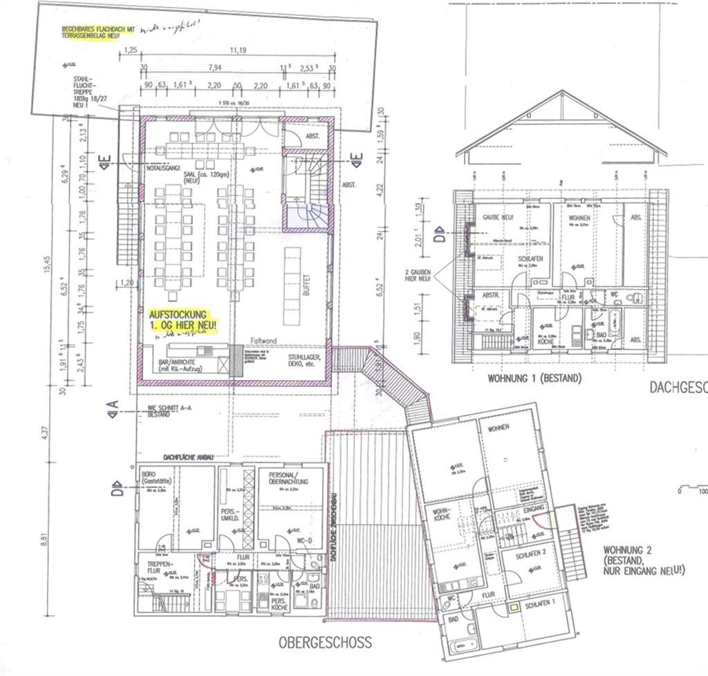
Die Ausstattung lässt keine Wünsche offen: stilvolle Außenloungemöbel, Bierzeltgarnituren sowie ausreichend Stühle und Tische sind bereits vorhanden. Für die Möbel ist eine Abschlagszahlung von 150.000 € erforderlich. Für Ihre Gäste stehen Parkflächen für bis zu 60 Fahrzeuge zur Verfügung. Die moderne Theke und mehrere Kühlschränke garantieren einen reibungslosen Betrieb. Im Kellergeschoss wartet ein ehemaliges Schwimmbad darauf, bei Bedarf revitalisiert zu werden. Zudem profitieren Sie von zwei vermieteten Wohnungen sowie einer Betriebswohnung, die zusammen eine monatliche Nettomiete von 2.000 € generieren. Die Gewerbefläche im Erdgeschoss bietet Ihnen die Möglichkeit, entweder bis zu 5.000 € Miete zu erzielen oder selbst genutzt zu werden.
Objektbeschreibung
Entdecken Sie diese außergewöhnliche Immobilie, die einst als Jagdhaus diente und heute als einladendes Gastgewerbe fungiert. Auf einem großzügigen Grundstück von 17.663 qm erstreckt sich das Objekt über mehrere Gasträume mit einer Gesamtfläche von ca. 202 qm, ergänzt durch Abstellräume, eine große Gastronomieküche sowie moderne Sanitärräume für Innen- und Außenbewirtung. Der weitläufige Außenbereich lädt zu geselligen Stunden im Biergarten ein, während der charmante Holzpavillon mit kompletter Einrichtung für unvergessliche Veranstaltungen sorgt.
Sonstige_angaben
Diese besondere Immobilie verlangt nach einem visionären Projekt! Nach umfassender Sanierung und Modernisierung im Jahr 2010 ist sie bereit für neue Ideen und Konzepte – lassen Sie Ihrer Kreativität freien Lauf und gestalten Sie hier Ihre Zukunft!
Der Energieausweis wird umgehend erstellt und nachgereicht.
Nach Abschluss des Kaufvertrages ist die im Exposé ausgewiesene Courtage vom Käufer zu zahlen.
Bitte beachten Sie, dass wir gemäß § 2 Absatz 1 Nr. 10 des Geldwäschegesetzes seit 2014 verpflichtet sind, unsere Vertragspartner – einschließlich Interessenten mit Erstkontakt – zu identifizieren. Wir bitten Sie daher, uns vorab eine Kopie Ihres Personalausweises per E-Mail zukommen zu lassen oder diesen zu unserem Besichtigungstermin mitzubringen.
Vielen Dank für Ihr Verständnis.
Ausstattung
- Rampe
- Hebebühne
- Kran
- Bodenart
- Fliesen
- Heizungsart
- Zentral
- Befeuerung
- Gas
- Swimmingpool
- Sicherheitstechnik
- Kamera
Energiepass
- Energieausweis ist in Bearbeitung
Kontaktperson
- Firma
- m&k immobilien
- Vorname
- Ina
- Name
- Nau
- Strasse
- Kurstraße 23
- PLZ
- 61231
- Ort
- Bad Nauheim
- Email Direkt
- anfrage@mukimmobilien.com
- Telefon Durchwahl
- +49 6032 7848719
- Fax
- +49 6032 7848591
Immobiliendetails
- Objektnummer
- 1011 (1/1011)
- Vermarktung
- Kaufen
- Objektart
- Gastronomie
Kosten
- Kaufpreis
- 1.100.000,00 €
- Provision
- 5% des Kaufpreises (zzgl. 19% MwSt.) inkl. MwSt.
Flächen
- Anzahl Stellplätze
- 60,0
- Anzahl Terrassen
- 1,0
Zustand
- Baujahr
- 1745
- Zustand
- Gepflegt
- Letzte Modernisierung
- 2010
- Frei ab
- 2025-03-18



























